21 Sloane Street MARRICKVILLE NSW

BRAND NEW FOOD FACILITY

Leased

Industrial

1

Overview

Type
Industrial
Contract
Leased
Building Size
430 sqm
Carport
1

IDEAL FOR COLD STORAGE, DISTRIBUTION AND FOOD PROCESSING


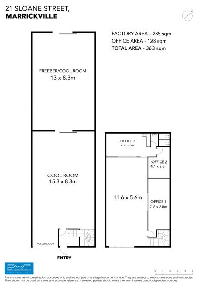
Factory Area: 235sqm
Office Area: 128sqm
Total Area: 363sqm

Agentpoint Maps Loading…